參數信息
| 案例名稱 | 78㎡自由和變化的家 | 戶型 | 兩居室 | 案例面積 | 78㎡ |
| 風格 | 簡約 | 店面 | 設計師 | 徐忠強 |
設計說明
戶型的改動在于重新整合業主的需求關系,了解需求背后的深層含義. 屋主希望更加自由開敞和趣味的家,在了解到屋主可以接受到我們這里提出的一些新的臥室概念,我們對于空間墻體做了一些改動,同時也賦予了一些新的功能構件進去... 1 重新歸納進處主臥室的動線,考慮業主需要干濕分區的功能需求,我們重新打開臥室和客廳相隔的一面墻,通過可以滑動的移門滿足到客廳與臥室之間交互關系,也***化滿足空間尺度隨時間需求可以
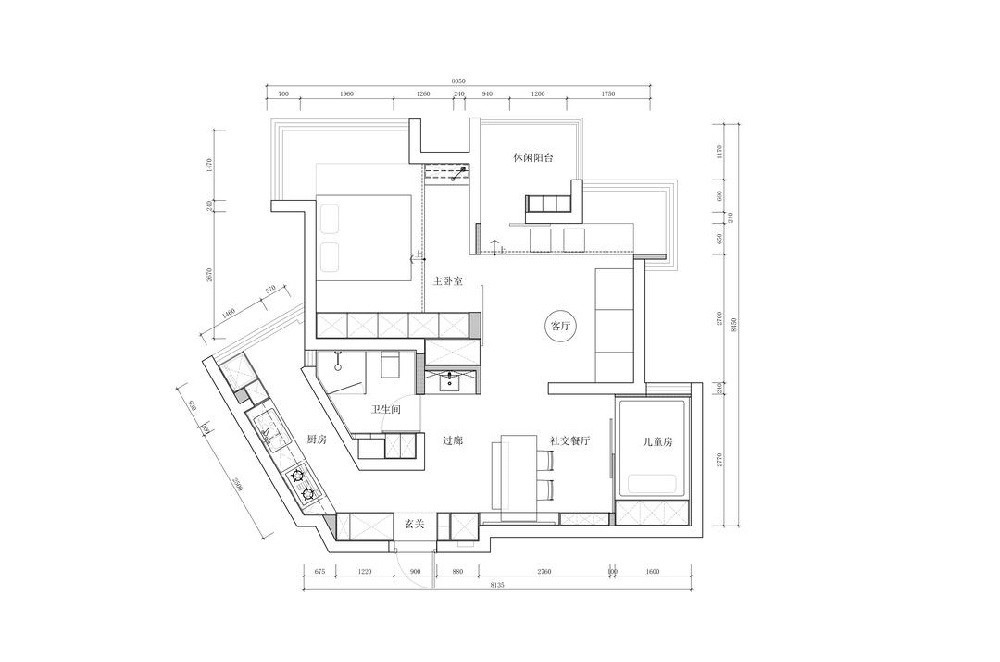
平面圖
客廳
頂部線面的組合與空間的結構交相呼應...
臥室門的選擇我們通過移門的方式滿足空間尺度上的變化,移門本身的屬性也可以更大化滿足屋主每***對于空間感官的變化,也更好的讓光可以肆意的流動于空間里...
可滑動的移門更好的增加了空間使用上的趣味性,同時也可以根據業主自身需求的變化,打造不同的空間屬性...
臥室
燈光的不同組合也為空間更好的增加趣味和氛圍感...
廚房
白色的靜謐與木柔和的展現空間的美,光影成為了空間的主旋律...
衛生間
光影的變化也給與了空間更多的生命力... 遠處的木色與灰色共同構成了空間的快和面...
水磨石表面紋路的變化與水泥的干凈樸素形成對比感...
本方案設計師
