參數信息
| 案例名稱 | 單身女教師的多功能袖珍“民宿” | 戶型 | 一居室/小戶型 | 案例面積 | 34㎡ |
| 風格 | 簡約 | 店面 | 十里河總部 | 設計師 | 張思涵 |
設計說明
實際得房面積僅為34平米。因此針對業主本身訴求和情況,需要設計師具有針對性的“量身定制”。業主為一名單身女性,從事教師職業,平時喜好看書閱讀且社交需求較少。同時由于房間面積較小,方案也需要具備較多儲物空間。在了解業主信息背景和功能需求后,設計師決定以木制家居風為主,打造一個簡約、溫馨且集整理容納多功能一體的袖珍“民宿”。
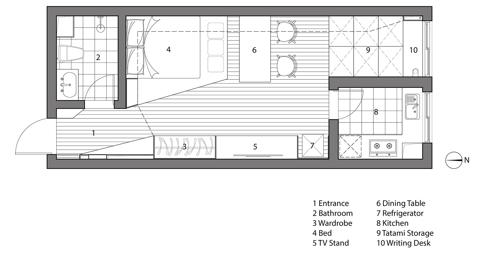
平面圖
客廳
餐廳
臥室
衛生間
玄關
本方案設計師
