參數信息
| 案例名稱 | 柏林愛樂簡約風格 | 戶型 | 兩居室 | 案例面積 | 65㎡ |
| 風格 | 簡約 | 店面 | 十里河 | 設計師 | 閆鑫鑫 |
設計說明
業主為年輕的一對夫妻,考慮到以后有小孩,老人也偶爾過來居住,想在客廳隔出一個臥室出來,又不想影響采光。沒有餐廳的位置,想有個餐廳的區域。主臥想做一個衣帽間出來。
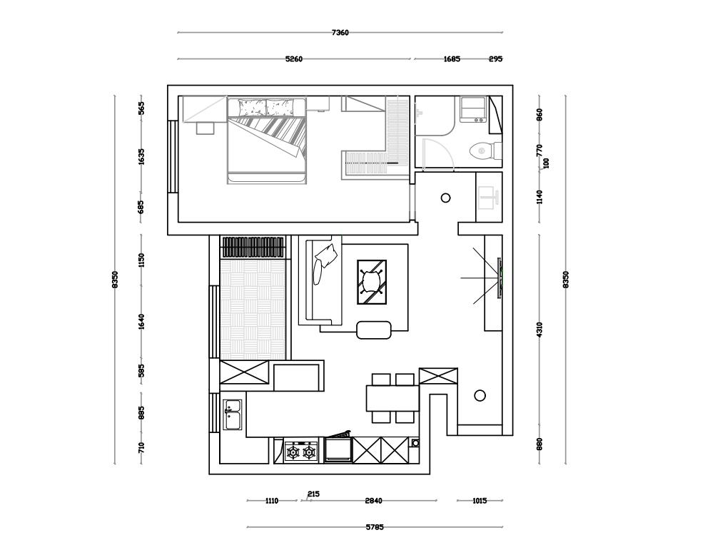
平面圖
客廳
寬敞明亮的空間格局,儲物也是十分強大。
餐廳
臥室
廚房
廚房改成U字型 ,操作起來更便捷。
本方案設計師
