參數信息
| 案例名稱 | 現代簡約 | 戶型 | 兩居室 | 案例面積 | 76㎡ |
| 風格 | 簡約 | 店面 | 設計師 |
設計說明
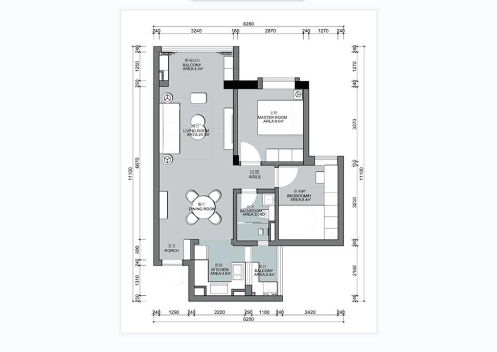
平面圖
客廳
客廳仍然是沿用白色的基調,沙發背景墻和電視背景墻的采用了PU線條裝飾,在沙發背景墻中放置了精致復古的裝飾畫,使整個墻面看起來不至于太單調,與電視背景墻相呼應,搭配了簡約的白色電視柜和富有設計感的小茶幾,顯得精致而優雅.
客廳仍然是沿用白色的基調,沙發背景墻和電視背景墻的采用了PU線條裝飾,在沙發背景墻中放置了精致復古的裝飾畫,使整個墻面看起來不至于太單調,與電視背景墻相呼應,搭配了簡約的白色電視柜和富有設計感的小茶幾,顯得精致而優雅1
餐廳
餐廳跟客廳是打通的,淡粉色的墻紙點綴整體空間的溫馨感,復古色調的凳子和置物柜跟客廳的墻畫保持一致的調性,不規則鏡子使得讓這區域無形中變大了,小小的空間,也可以不失格調。
餐廳跟客廳是打通的,淡粉色的墻紙點綴整體空間的溫馨感,復古色調的凳子和置物柜跟客廳的墻畫保持一致的調性,不規則鏡子使得讓這區域無形中變大了,小小的空間,也可以不失格調.
臥室
主臥的床頭背景墻采用了粉紅色的墻漆,自然、清新的色調散發出幸福的味道,營造溫情與浪漫的氛圍。飄窗也不失為一個愜意之地,慵懶地靠在抱枕上,品茶賞景,豈不快哉1
主臥的床頭背景墻采用了粉紅色的墻漆,自然、清新的色調散發出幸福的味道,營造溫情與浪漫的氛圍。飄窗也不失為一個愜意之地,慵懶地靠在抱枕上,品茶賞景,豈不快哉
客臥除了方便平日業主父母的偶爾留宿,做個榻榻米用作是收納,不浪費每一處空間。為了凸顯空間的簡潔,收納柜門采用嵌入式和將柜體的存在感降到最低,提升空間的整體感和美觀度,放眼望去,簡潔統一
廚房
廚房更換了櫥柜門板之后,整個氣質便煥然一新。簡潔明亮的白色調墻地磚和灰藍色櫥柜,提升了整個廚房的層次感,明顯看出比改造前更寬敞、明亮。餐廳與廚房緊密相連,色調搭配合理,營造出一種溫馨、和諧的氣氛
衛生間
衛生間整體大翻新,改造力度較大,從效果來看,相比于之前的雜亂無章,死角過多,改造后的衛生間讓人更舒適整潔,明亮的色調放大空間視覺效果
陽臺
打通的小陽臺,還備有儲物柜。
