參數信息
| 案例名稱 | 新中式 | 戶型 | 三居室 | 案例面積 | 165㎡ |
| 風格 | 中式 | 店面 | 北四環 | 設計師 | 阮祥 |
設計說明
一家三口居住,客戶喜歡中式風格,給人一種筆墨氣息。
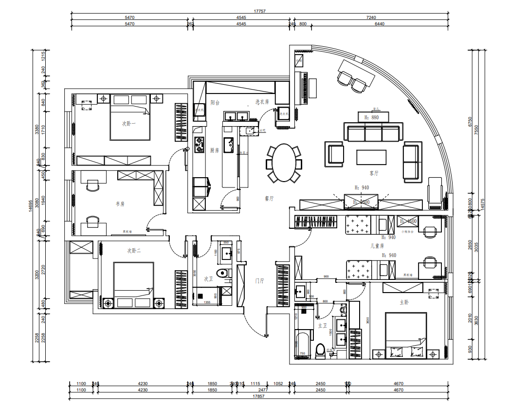
平面圖
客廳
憂郁的藍,素雅的米、沉穩的棕與散發迷人魅力的裝飾線條提升了客廳氣質,使空間更加有層次感,搭配山水壁布,使餐廳空間更有書香之氣,形成其特有的空間氣質。
餐廳
圓形的餐廳家具猶如一道靈動的光束,瞬間拉開了空間的維度,配上一抹清新的淺藍色,我想就餐時也會心情明媚燦爛吧。餐桌上的花束讓空間集典雅、現代、莊重于一體,西廚的設計提升了生活品質。
臥室
主臥,方寸之間,皆是優雅。極具自然風味的喜上眉梢壁布讓整個空間顯得優美儒雅,窗下的書桌滿足閱讀又不會過于壓抑,黃與藍的視覺碰撞令臥室耳目一新。“和而不同,各得其所”臥室內的每一個角落,都是精心布置,細細打磨,足以安放閑適的身心。
兒童房
本方案設計師
