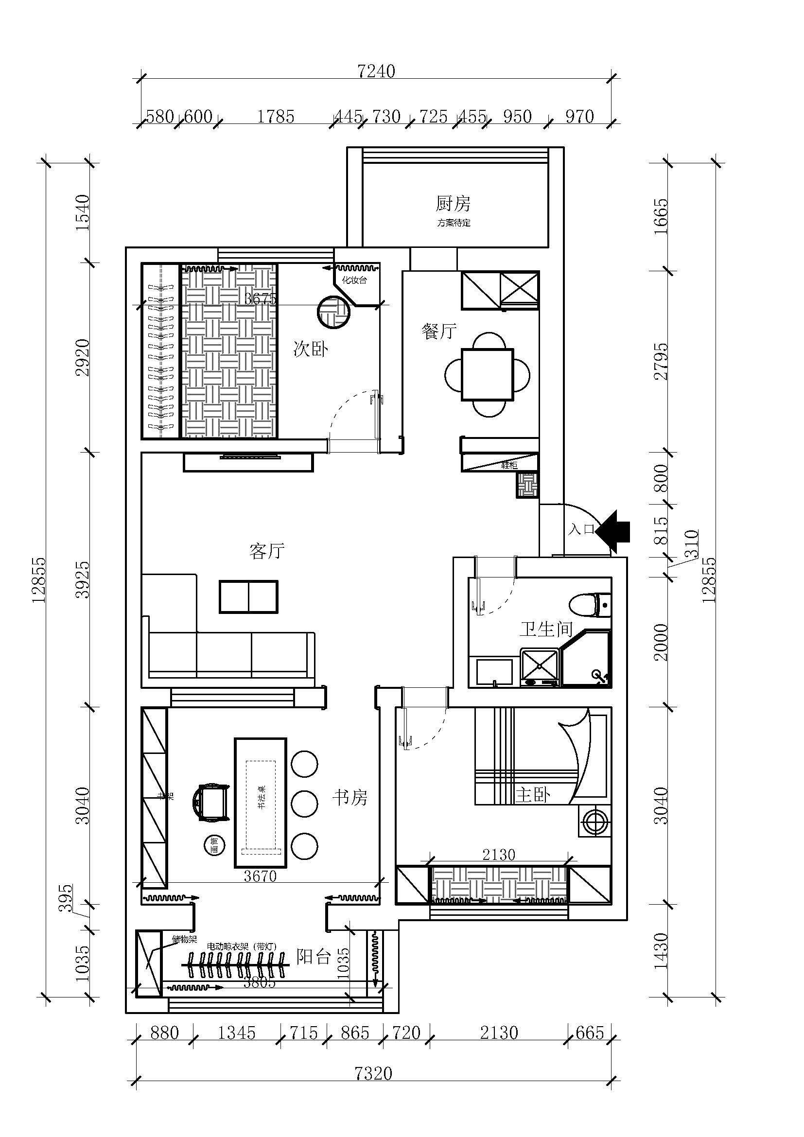
參數信息
| 案例名稱 | 宏圖里 | 戶型 | 兩居室 | 案例面積 | 90㎡ |
| 風格 | 中式 | 店面 | 十里河 | 設計師 | 徐盼 |
設計說明
平面圖
客廳
玄關
本方案設計師
