參數信息
| 案例名稱 | 將復古與現代家居結合 | 戶型 | 兩居室 | 案例面積 | 92㎡ |
| 風格 | 現代 | 店面 | 北店 | 設計師 |
設計說明
用魚骨拼木地板、水磨石紋磚、鏡面、經典款式的家具等,將復古與現代家居結合,同時加入繽紛色彩,優雅不過時!
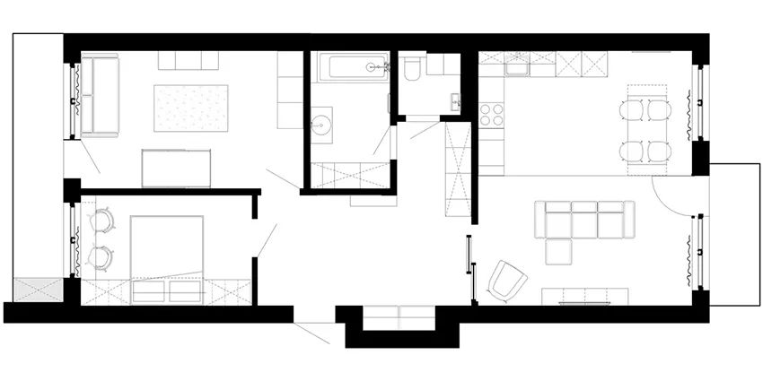
1. 南北兩側一分為二,兩間臥室和客餐廚區域徹底分開,中間采光稍弱的區域留給衛生間、玄關等功能性空間。
2. 動線走廊足有17㎡,劃出一部分給次衛,達成兩室兩衛的布局。
3. 主臥面積有限,將更多的空間留給兒童房,靈活布局,方便未來根據屋主的需要來調整。
1. 南北兩側一分為二,兩間臥室和客餐廚區域徹底分開,中間采光稍弱的區域留給衛生間、玄關等功能性空間。
2. 動線走廊足有17㎡,劃出一部分給次衛,達成兩室兩衛的布局。
3. 主臥面積有限,將更多的空間留給兒童房,靈活布局,方便未來根據屋主的需要來調整。
平面圖
客廳
一扇玻璃推拉門,后面即是30㎡的開放式公共空間,同時將窗外的自然光引入玄關走廊。客廳、餐廳和廚房一體式布局,小空間更應減少隔墻,開闊通透。湖水綠廚具x棕黃沙發,色彩鮮明有質感,引導屋主回歸記憶中的時光。
餐廳
餐桌靠窗布置,用餐時可將窗外景色盡收眼底。
臥室
主臥面積有限僅10㎡左右,高柜+床榻一體式設計,靠窗還增加了書桌臺面,麻雀雖小,兩個人住也足夠了。
廚房
水磨石磚和魚骨拼木地板分隔餐廚和客廳,櫥柜側面設計開放柜格,擺放書籍、水杯等使用頻率較高的物品,增加客廳的收納空間。
衛生間
衛生間沿用水磨石元素,干區的懸空洗手臺,背面局部鋪磚+防水漆,美觀好打理。
兒童房
未來家庭成員增加,也可根據需求靈活調整布局,滿足1~2孩的舒適居住。
玄關
玄關一側,以換鞋凳、掛鉤+吊柜補足凹陷結構,方便進出門的一系列動作,一舉兩得。
藕紫色的低矮墻裙加強耐臟性,上方拼接大面白墻,拉伸房子的視覺高度。
