參數信息
| 案例名稱 | 年輕女孩的89平三居室 | 戶型 | 三居室 | 案例面積 | 89㎡ |
| 風格 | 現代 | 店面 | 北店 | 設計師 |
設計說明
1. 衛生間只需要一個,客衛改成了西廚區,可以解決屋主大部分烹飪需求
2. “過道消失”:將一部分過道空間分給原主衛,提高舒適度;通過增加兩邊的功能和觀感,讓過道變成公共領域的一部分
2. “過道消失”:將一部分過道空間分給原主衛,提高舒適度;通過增加兩邊的功能和觀感,讓過道變成公共領域的一部分
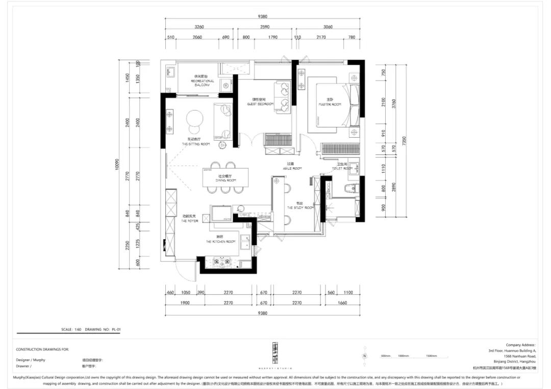
平面圖
客廳
打開家門,暖意拂面而來。客餐廳完全敞開,相對于大戶型,小戶型其實更需要空間感。
餐廳
西廚地面和墻面的復古小磚,靈感來自于巴塞羅那老式建筑,復古綠+幾何花紋,對稱清新,小的細節總會給人驚喜。
臥室
主臥空間朱砂紅為主色調,選用了很有歲月感的編織床頭和柚木床,空間優雅、知性有年代感,同時多了一份自然意趣。
廚房
開放式廚房,視覺上空間更顯開闊,U型布局充分利用空間。
書房
書房是屋主高頻使用空間,溝通需求時,屋主表示:“我不喜歡封閉的書房,感覺像在關禁閉。我喜歡透的,但需要隔音。”
