參數信息
| 案例名稱 | 簡家 | 戶型 | 別墅 | 案例面積 | 500㎡ |
| 風格 | 美式 | 店面 | 南店 | 設計師 | 張思涵 |
設計說明
家中三世同堂,常住人口為一家四口和父母。孩子學習鋼琴,需要有擺放樂器的位置。業主喜歡穩重大氣的色調。
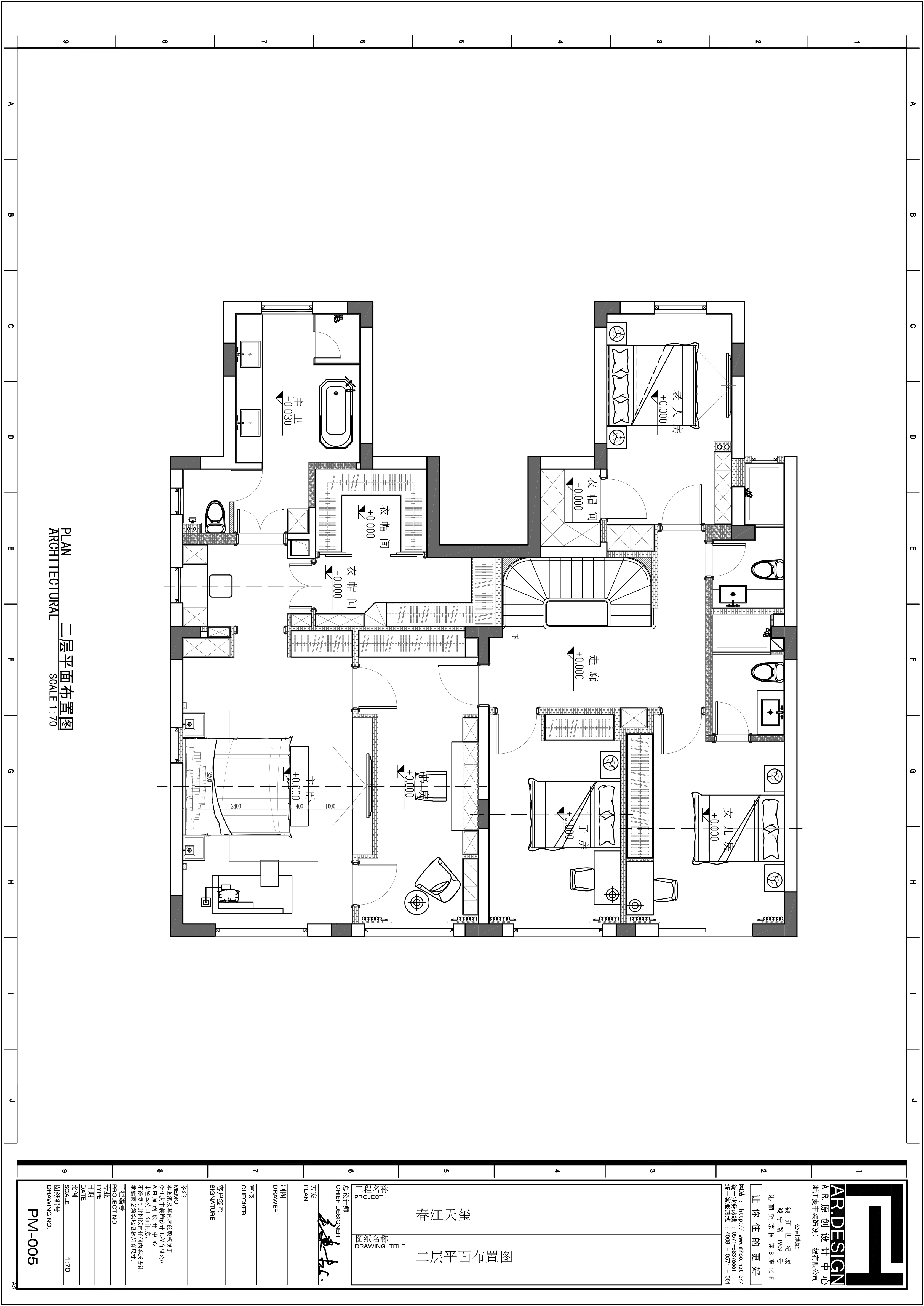
平面圖
客廳
客廳以灰白為主色,簡單干凈,與深木色質的柜子在空間中交融而亮眼,多燈泡大燈在天花板上垂吊,賦予整個空間一種靜謐之美。
餐廳
餐桌與背景墻間預留出的空間以西廚島臺進行填補,將餐廳的功能性提升至最大。內嵌的家用電器,更是將可用空間最大化。
臥室
深木地板與灰白的碰撞好像似曾相識,卻又別出心裁,再以金屬小柜作配,平添了一絲的復古感。
衛生間
簡單、亮堂和實用是對衛生間最大的期望,直線型衛生間使空間一覽無遺,左右直曲線條的對望,動靜相合。多水池設計更是為時間管理做足了準備。
兒童房
女孩偏愛粉色,木質紋路的粉色墻壁與深色木地板相配,溫柔大氣。以金屬裝飾的床頭柜更是將法式風情拉滿。
本方案設計師
