參數信息
| 案例名稱 | 黑白現代哲學空間 | 戶型 | 別墅 | 案例面積 | 220㎡ |
| 風格 | 現代 | 店面 | 北店 | 設計師 | 程亞運 |
設計說明
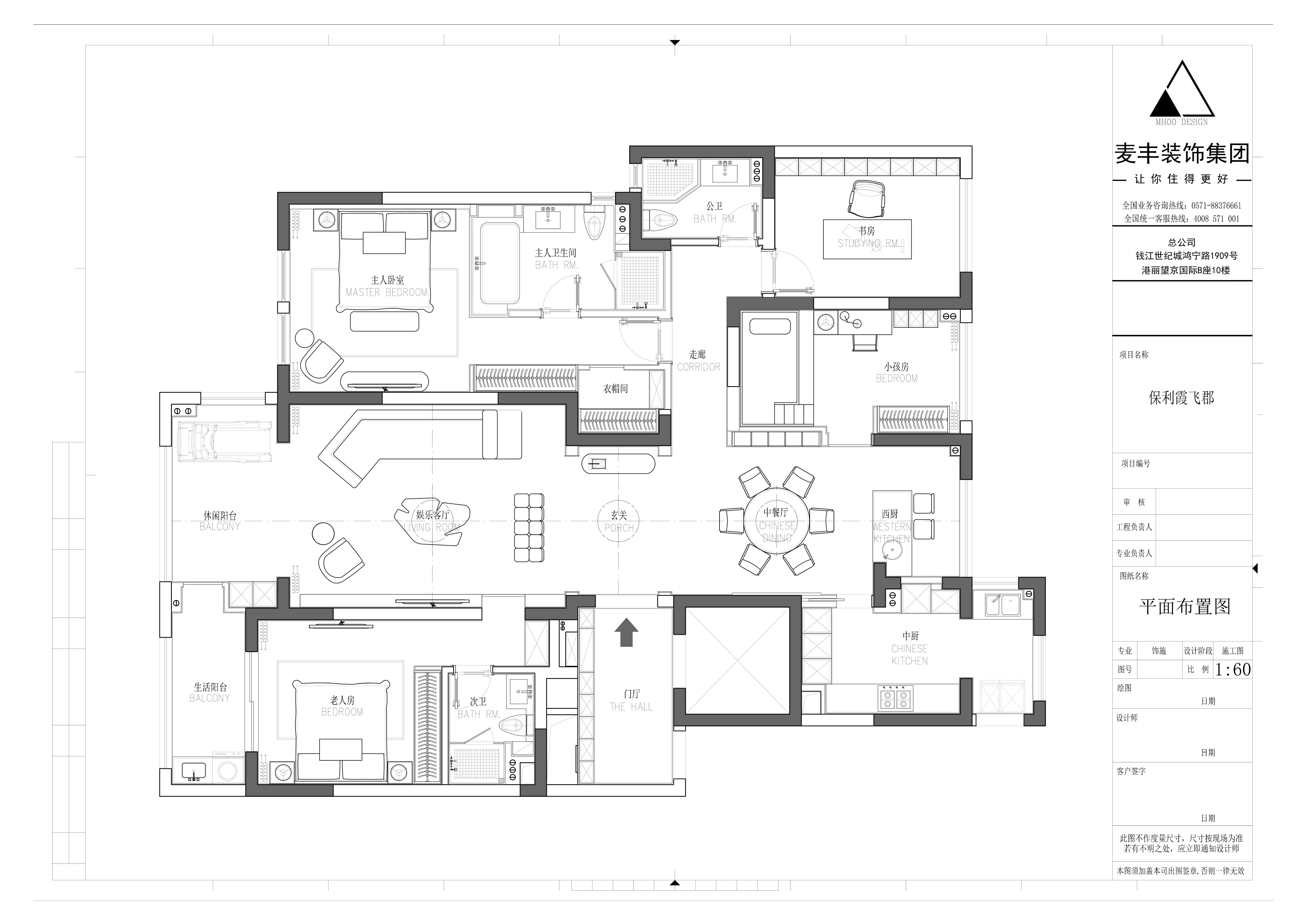
平面圖
客廳
無主燈式的設計,弱化亮點,同時以不同灰度的沙發來加強視覺中心,搭配不同材質組成的背景墻,展現不同層次的美,在視覺上既擁有張揚的既視感,又不乏別樣的寧靜美感。
餐廳
在某個普通的夜晚,好友閑坐,燈火可親。食一碗人間煙火,飲幾杯人生起落,治愈你,溫暖我...
臥室
臥室的風格更偏向輕奢,不同于客餐廳,以淡色系作為基調,展現舒適的畫風。讓居住者在進入臥室的一瞬間,就放下滿身的疲憊。沒有過于復雜的元素,只用金屬線條作為點綴,簡單與精致在這里并不顯得沖突。
廚房
愛只有落實人間煙火才能長久,廚房以黑白灰色調作為基底,讓空間有了更大的發揮空間,美好的設計讓烹飪變成了一件愜意的事。
衛生間
將主臥的光線引入衛浴空間,大面積的白色空間在視覺上得到延展,盡顯空間優越的整體感。
采用懸空浴室柜及臺上盆,沒有衛生死角,方便后期打理。
書房
書房既是男主人的工作室,又是他的閱讀間。深褐色收納架與魚骨拼木地板的搭配,仿佛淡中有味清中貴的美式咖啡,低調不張揚,氣韻悠長,回味是高級的滋味。每一個日常都藏著居住者專屬的優雅。
