參數信息
| 案例名稱 | 130平北歐風二居室,臺灣40年的老房,改得也太棒了 | 戶型 | 兩居室 | 案例面積 | 130㎡ |
| 風格 | 北歐 | 店面 | 企鵝村文創園美晟家裝飾 | 設計師 | 趙博洋 |
設計說明
今天分享的是一套來自臺灣的40年的老房改造案例,這套老房的建筑面積為130平,屋主喜歡干凈利落的感覺,所以改成了北歐風的家,房子很大,但卻只劃分出了兩間臥室,各個空間都非常寬敞,讓人羨慕不已
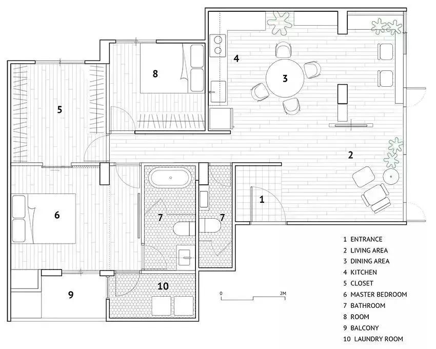
平面圖
餐廳
餐廳和開放式的廚房集合,櫥柜是靠著墻面設計的L型櫥柜,原木風的餐桌椅搭配角落里的綠植和收納架,實用又美觀。
臥室
主臥簡潔而又大方,床頭背景墻刷成了灰色,用小茶幾來代替床頭柜,臥室內部舍棄了柜子之后,顯得更加的輕松、舒適。
衛生間
主衛和次衛兩個空間的設計大部分相同,區別就在于一個是淋浴,一個是浴缸,還有墻面的花磚裝飾有所不同。
主臥簡潔而又大方,床頭背景墻刷成了灰色,用小茶幾來代替床頭柜,臥室內部舍棄了柜子之后,顯得更加的輕松、舒適
餐廳和開放式的廚房集合,櫥柜是靠著墻面設計的L型櫥柜,原木風的餐桌椅搭配角落里的綠植和收納架,實用又美觀
利用靠窗的位置來做了書房,柜子和長隔板的組合,用百葉簾作為窗簾,陽光被折疊之后,顯得更加的柔和、舒適。
陽臺
利用靠窗的位置來做了書房,柜子和長隔板的組合,用百葉簾作為窗簾,陽光被折疊之后,顯得更加的柔和、舒適
本方案設計師
