參數信息
| 案例名稱 | 莊重與奢華氣息并重 | 戶型 | 三居室 | 案例面積 | 118㎡ |
| 風格 | 歐式 | 店面 | 十里河 | 設計師 |
設計說明
三間南面房,正南方向10.2米超大采光面,絕好采光,完美視野
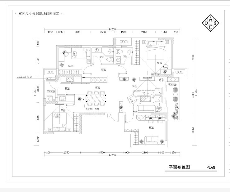
平面圖
客廳
業主為中年夫妻二人,家里常住人口為三口人,加一個高中女兒,所以業主想把家裝的比較豪華,看上去比較高端大氣上檔次。為了讓整個客廳看上去不至于太過于單調或者單一,加了一些墨綠元素以及黑白進去,讓客廳更富層次感。
臥室
客房作為一個不常用的房間,相對主次臥就更加的簡單隨意了,墻面沒有做任何造型,只是簡單了掛畫來裝飾搭配。此臥室兼備的是客房以及偶爾老人過來住的作用,所以沒有做復雜或者過多的造型。
廚房
廚房鑒于戶型的限制,所以在本案的話,是只做了簡單的一面地柜來滿足后期的使用需求。沒有做雙邊桂,是考慮到后面的一個站立空間。柜體顏色采用了儒雅黑來進行搭配,經典耐看,不失潮流。
衛生間
主衛的整體效果感覺上與主臥大體相同,整體感覺都是比較簡單素雅,不失豪華。智能馬桶搭配淋浴房,功能分區格外分明。以便于后期的使用需求,互不干擾。
