參數信息
| 案例名稱 | 像多啦A夢充滿想象的家 | 戶型 | 三居室 | 案例面積 | 90㎡ |
| 風格 | 現代 | 店面 | 十里河 | 設計師 |
設計說明
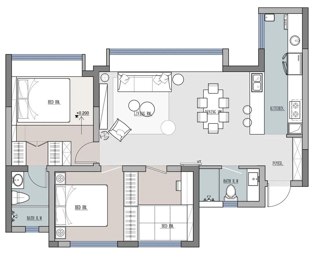
平面圖
客廳
飄窗選用百葉簾,利落干凈,可根據需求靈活調節光線,沙發與裝飾柜均為成品,空間靈活可變
整個客餐廳無吊頂,軌道射燈作為輔助光源,選用簡潔光氛圍較好的雙頭斗膽燈,減少吊燈所帶來的累贅感。
主沙發則置于靠窗位,更好的享受陽光的同時,相比橫放于客餐廳之間,空間更為開闊。
夕陽西下,斑駁的光影映射在墻面,像是一個隨著時間變化也在不斷變化的動態雕塑。
餐廳
餐廳與開放式廚房相連,視覺上更為開闊。餐桌的選擇,在色系上與整個空間呼應,橢圓形的桌面也更時尚
臥室
墻面同樣延續了藍白主基調,藍色半墻點綴粉灰邊帶,讓空間層高視覺上得到拉伸。窗簾搭配上,選擇了深藍與白相間的幾何紋,同時岔了臟粉的邊帶,與空間呼應,不僅如此,在床品選擇以及掛畫搭配上,都豐富空間層次的同時,又做到和諧統一
主臥門選擇了極窄2公分門套線,在白色的墻面上比較弱化,盡量減少門對于客廳裝飾墻面整體性的影響,再點綴了比較跳脫的藍色門把手,與墻面色彩呼應,實用與顏值并存。同時藍色門鎖有起到空間承上啟下的作用,從客廳的藍色系連接到主臥的深藍背景墻。
在色彩搭配上,選用讓人比較沉靜、有助于睡眠的深藍,作為臥室的主基調,再配以安寧溫暖的橡皮粉作為輔色,同時白色柜體減少了空間的擁堵感,讓空間色調也更為的明快。
廚房
餐椅選透明亞克力材質的,讓空間更為輕盈與通透。混搭的餐椅在形狀上與餐桌亦作了呼應,豐富且統一。
將廚房打開,與入戶客餐廳連為一體,符合現在年輕人居住需求與審美喜好的LDK布局方式,讓空間獲得放大功能。藍白搭配的廚房配以精致的銅把手,空間時尚而精致。煙機與洗碗機均采用內嵌的方式,廚房整體顯得更加統一簡潔。
原始廚房與餐廳之間有一根40cm的梁,為了盡量保證層高,廚房區域吊頂均采用30cm高度,一是為了包平廚房與入戶之間的梁,二是為了風管機位置的安放。裸露出來的梁刷深藍色,反而跟櫥柜之間有了呼應,增添了空間的趣味構成感
衛生間
硬裝設計上選擇了白灰色系,干凈、簡潔,讓緊湊的衛生間看起來相對開闊。配以深藍的浴室柜,延續整個空間的藍色基調,再點綴金色邊框帶燈帶的浴室鏡,讓衛浴空間也變得更加精致
