參數信息
| 案例名稱 | 夢幻的家 | 戶型 | 四居室 | 案例面積 | 150㎡ |
| 風格 | 現代 | 店面 | 十里河 | 設計師 |
設計說明
在這大千世界里,總有那么一群人,她們如同少女一般夢想著童話里公主般的生活
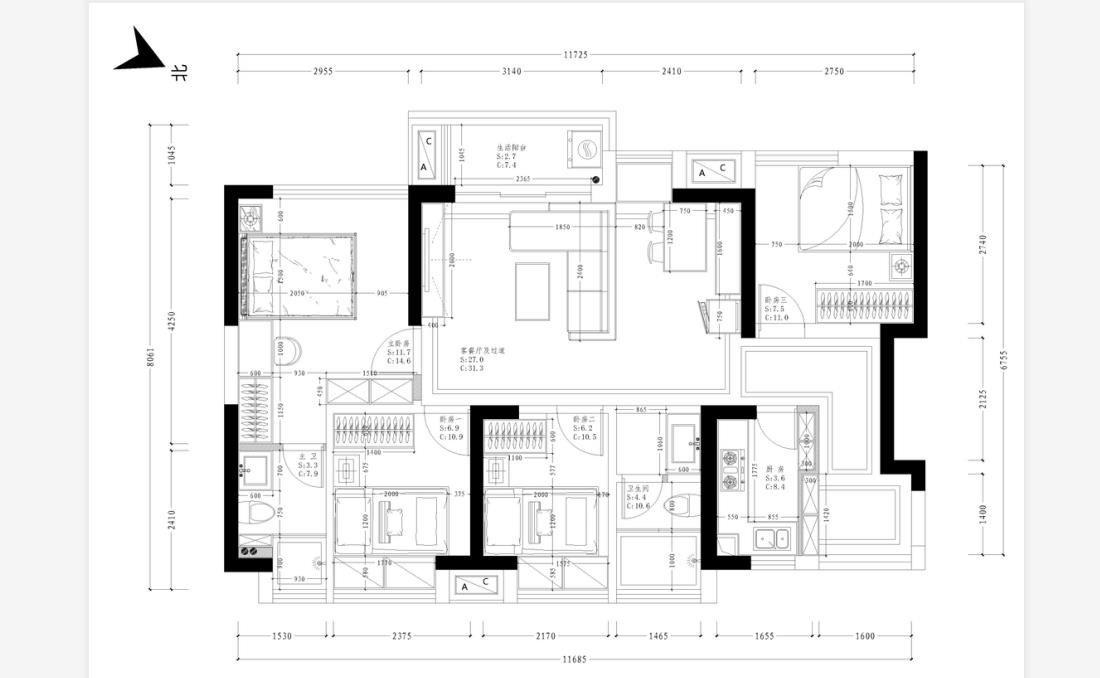
平面圖
客廳
將原結構中的電視墻轉了90度,并把走廊融進客廳區域里
餐廳
小餐桌搭配,充滿鄉村感
臥室
采用了橡皮粉+白+原木的色調
衛生間
大膽地將追求自由的心表露無遺:墻面用大理石紋墻磚搭配一面粉色的條紋墻磚
