參數信息
| 案例名稱 | 六口之家 | 戶型 | 四居室 | 案例面積 | 120㎡ |
| 風格 | 現代 | 店面 | 十里河 | 設計師 |
設計說明
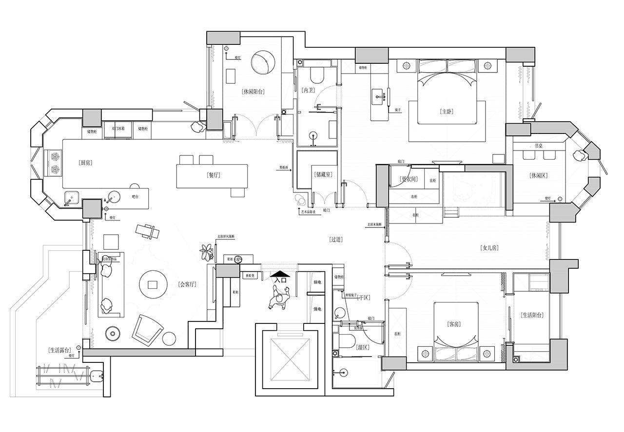
業主家中六口之家,兩個女兒,以及父母,注重各自空間隱私,主臥的生活工作一體化設計。公共空間較大利于孩子游樂,學習。生活陽臺與洗曬陽臺區分開。
平面圖
客廳
清新明亮的客餐廳,木質地板更加溫馨自然
臥室
主臥洗手區域和居住區隔而不斷
廚房
白磚木頂,做飯猶如置身室外,一體櫥柜定制,儲物功能強大
衛生間
衛生間干區臺上盆設計,一體浴室柜,整體利用率高
