參數信息
| 案例名稱 | 春暉隨園 | 戶型 | 三居室 | 案例面積 | 165㎡ |
| 風格 | 現代 | 店面 | 十里河 | 設計師 | 閆姍 |
設計說明
整個空間采用了大量的暖白與跳色不同程度的體現對比關系下,通過大面積的背景墻與現代線條體現高冷下的柔和,寧靜而好,簡約而時尚。
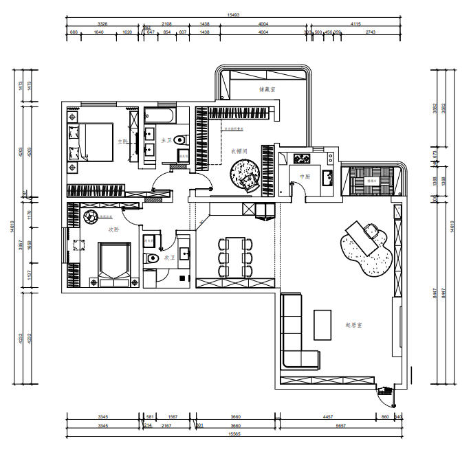
平面圖
客廳
在客廳色調的選擇上,以高貴的墨綠色為主。運用黃色的抱枕作為跳色,通過原木色地板搭配灰色地毯與藝術品的懸掛和燈光的使用,營造空間的時尚感。
餐廳
卡座與餐桌的結合,功能齊全,方便至極!在風格上,這里延續客廳餐廳的裝飾,墨綠色的柜體搭配原木色的餐桌餐椅,木色地板極富質感也有著天然的紋理,餐桌上方的吊扇燈飾更為這一空間增添了時尚感,整個空間毫不繁瑣,卻自有簡潔特有的美感。
臥室
臥室的顏色冷暖結合,床頭背景墻簡單的造型搭配金屬收邊條,光澤感像絲綢一樣的床品和窗簾,一冷一暖,搭配床頭點光源,陳設的魅力如此簡單、直白。裝飾品的色彩和造型打破了空間的規律性,表達空間的豐富性和層次感。
廚房
本方案設計師
