參數信息
| 案例名稱 | 追隨生活的意象? 不斷探索的新家 | 戶型 | 四居室 | 案例面積 | 200㎡ |
| 風格 | 現代 | 店面 | 十里河 | 設計師 | 單寶棟 |
設計說明
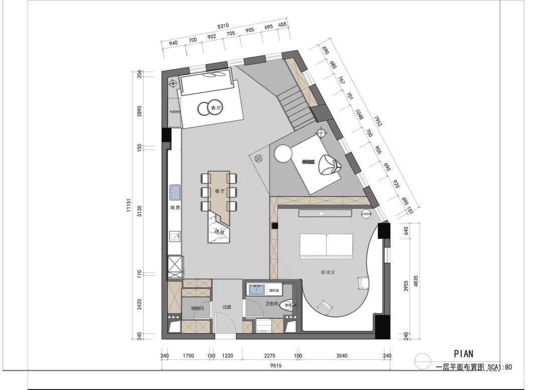
平面圖
客廳
空間的形式需依附于空間的功能,如果形式不能適應功能的需求,則不利于為居住者創造一個良好的生活空間,而形式也會促使功能的轉變與發展 總之 這二者之間是互相聯系 相輔相成的
空間的形式需依附于空間的功能,如果形式不能適應功能的需求,則不利于為居住者創造一個良好的生活空間,而形式也會促使功能的轉變與發展 總之 這二者之間是互相聯系 相輔相成的
餐廳
生活中我們是獨立的個體,卻又為社會中一個整體 空間里的分布 也是如此 如何讓獨立的個體和諧并存在整體空間中 是我們一直在尋求和探索的課題
生活中我們是獨立的個體,卻又為社會中一個整體 空間里的分布 也是如此 如何讓獨立的個體和諧并存在整體空間中 是我們一直在尋求和探索的課題
臥室
生活中我們是獨立的個體,卻又為社會中一個整體 空間里的分布 也是如此 如何讓獨立的個體和諧并存在整體空間中 是我們一直在尋求和探索的課題
廚房
生活中我們是獨立的個體,卻又為社會中一個整體 空間里的分布 也是如此 如何讓獨立的個體和諧并存在整體空間中 是我們一直在尋求和探索的課題
衛生間
生活中我們是獨立的個體,卻又為社會中一個整體 空間里的分布 也是如此 如何讓獨立的個體和諧并存在整體空間中 是我們一直在尋求和探索的課題
