參數信息
| 案例名稱 | 牡丹園北里 | 戶型 | 兩居室 | 案例面積 | 70㎡ |
| 風格 | 現代 | 店面 | 十里河 | 設計師 |
設計說明
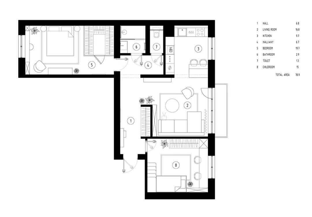
平面圖
客廳
客廳淺色的室內色調非常有個性
客廳增加了儲物柜,滿足客廳的收納同時,又不增加沉悶感。
簡單的電視柜,配上一副撞色的裝飾畫,讓整個空間設計感提升
餐廳
臥室
綠色的床和白色的床頭柜搭配讓整個空間更加清新亮麗
窗臺充當臨時書桌,兩邊的墻壁打空成為內置型的書柜,擁有良好光線視野的同時也節約了空間。
廚房
櫥柜做了開放格和門板結合,滿足收納的方便性
衛生間
圓形的鏡體比方形和長形的鏡體更顯空間的質感
整個衛生間采用了白色和橘色撞色的手法,瓷磚采用的錯縫鋪發,讓整個衛生間簡單又有設計感。
